HomeAllUG I-IVGA V-VII | etc.                         







1245 S Van Ness Ave


SP24

Faculty: Nick Safley
Kent State University - IDS Award - Pella Award for Best Integrated Facade
in collaboration with Dominic Holiday  
Shared on DEZEEN
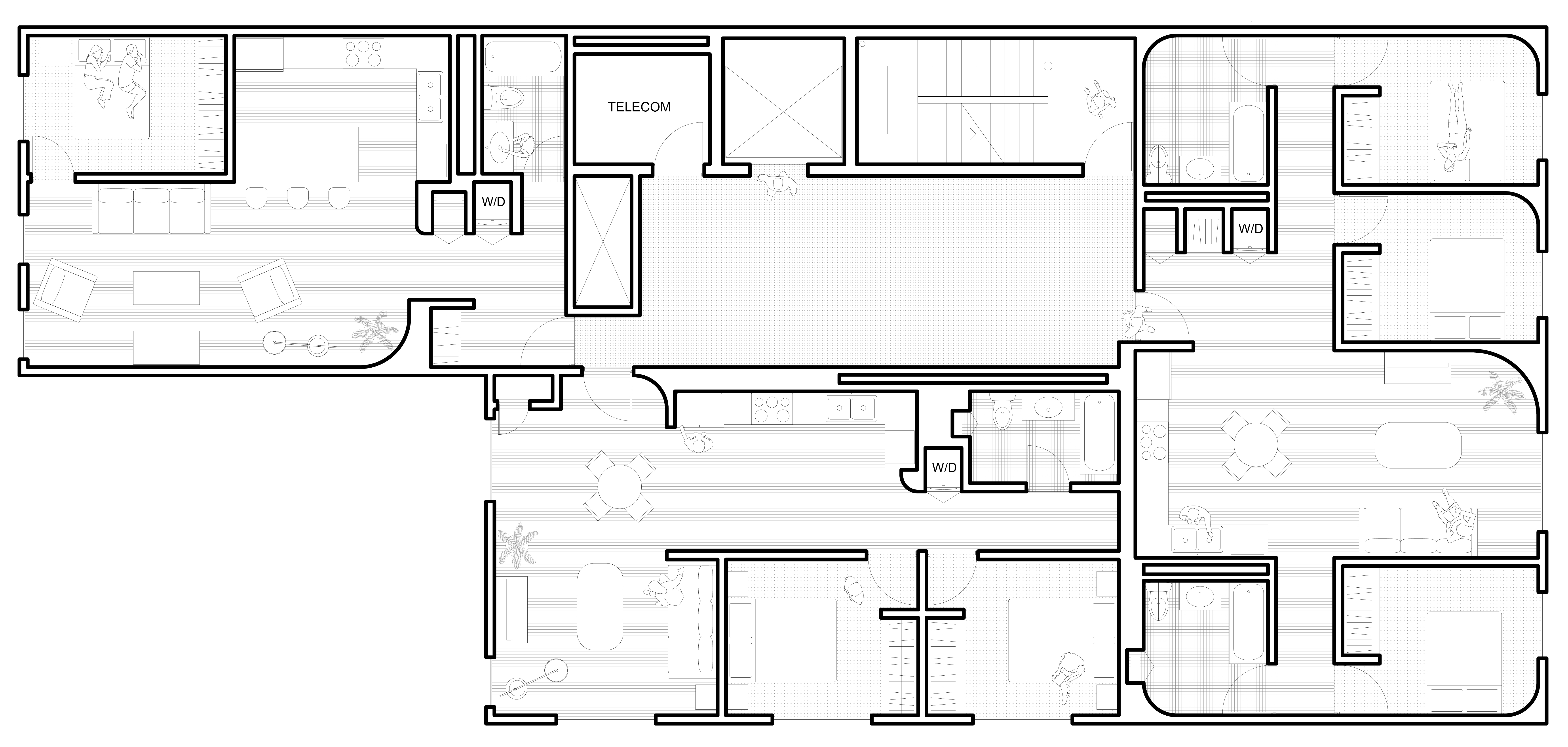
A 128,000 sqft housing facility, 1245 S Van Ness Ave explores the use of anthropomorphic shapes and the spaces they create to create a complex and varied social framework withparticipatory way of living. This is achieved by organizing nine distinctly shaped buildings, or characters, along the West and East elevations of the site, each holding separate cores and mechanical infrastructure for occupants. Selecting legs, bodies, and hats for these characters gives residents a sense of shared identity from the public street. As these shapes move into the site’s interior, they warp and intersect, allowing users to participate in the multiple characters — acting as places for repose, gathering, or amusement. The ground-level shapes forming the legs of the building characters create various small-scale spaces.


Yale M.Arch I - 26
Kent B.S Arch - 23

Justin D Levelle