HomeAllUG I-IVGA V-VII | etc.                         
 No Island                                          Resort Island                                            Green Island  









2032-No Island
2034-Resort Island

                          2034-Green Island


No Island - Section + Plans



Resort Island - Section + Plans





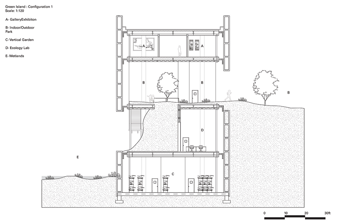
Green Island - Section + Plans







No Island

Resort Island

Green Island










Veil


FA21

Faculty: Francois Sabourin
Featured in Kent State CAED X-Gallery
in collaboration with Dominic Holiday
 
Traditional belief holds that a building’s lifespan is from its conception until later its inevitable demolition. Our goal as designers is to accommodate this indeterminate period. Therefore, how does a building not only allow for the adaptation of the users but the physical landscape? Furthermore, how does a building function as a means to express these changes over time? The veil began with the speculation on the future of our site, Kelleys Island Quarry, in North Eastern Ohio. Each of these speculations spans 30 years and has its respective filling conditions associated with the quarry filling. These alterations reflect changes in occupation, the function of the building, and the way the facade system interacts with the different filling conditions.


Yale M.Arch I - 26
Kent B.S Arch - 23

Justin D Levelle